天童市老野森【新築建売】リリーフB棟

3,480万円

山形県天童市老野森1丁目3-4

奥羽本線「天童」駅徒歩13分

価格
3,480万円
間取り
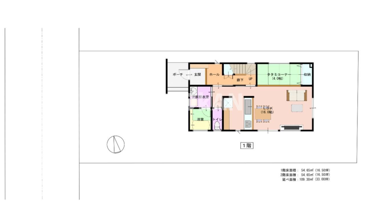
3LDK
土地面積
204.84㎡
所在地
山形県天童市老野森1丁目3-4
交通

奥羽本線天童」駅 徒歩13分

建物面積
110.13㎡
築年月
2025年9月(新築)

現地見学会

日時 2025年9月20日 ~ 2026年12月31日  09:00 ~ 18:00
  • ※事前に必ずお問い合わせください
  • 現地見学会(事前に必ずお問い合わせください)
    日程/毎週土日祝
    時間/8:30~18:00
    ”お気軽にご連絡ください”

    『家をさがそう。』
    マイホームのお探しは『フドカン』としませんか?

    押し売りは一切いたしません。
    『フドカン』はお家を探すあなたのパートナーです。

    土日祝日に限らず、平日や夜間のご案内でもお任せください!
    お仕事やお子さんの面倒でお忙しい方でも空いた時間にお気軽にお越しください!
    貴重なお時間で分かりやすくご案内させて頂きます。


    ■□■□■□■□■□■□■□■□■□■□■□■□■□■□■□■□■□■□■□■□

    (株)不動産カンパニー
    〒994-0082 山形県天童市芳賀タウン北6丁目2番21号天童駅前ビル1階A号室

    ご連絡はこちら↓
    TEL 023ー679ー3476     

    無料通話はこちら↓
    0800ー811ー9935

    ■□■□■□■□■□■□■□■□■□■□■□■□■□■□■□■□■□■□■□■□

    ☆住宅ローンのご相談受付中☆
    住宅ローンの不安を解消します!住宅ローンもフドカンにお任せです。

    『その返済計画本当に大丈夫ですか?』

    住宅ローンの返済や、税金等の申告や納付など購入後のことも考えなければいけません。
    そのために事前審査のご案内はもちろん資金計画書も活用しながら購入後も安心のご提案をします。

物件の特徴

  • バストイレ別

  • TVモニタ付きインターホン

  • 独立洗面台

  • 浴室乾燥機

セールスポイント

≪老野森≫B棟
♪中部小学校まで徒歩7分!
♪ヤマザワまで徒歩8です!

ポイント

オートバス 高機能トイレ 前道6m以上 追焚機能浴室 浴室乾燥機

担当者のコメント

山科 渉

こだわりで選びたい方におすすめ。天童市エリアで住まいをお探しなら「天童市老野森【新築建売】リリーフB棟」。徒歩6分の場所に天童市立天童中部小学校があります。新生活をピカピカの新築戸建て物件で始めてみませんか。浴室乾燥機を備えているお風呂場のある物件です。不動産購入で失敗しないように、豊富な経験と知識を持つ当社がしっかりとサポートを行います。ご希望の条件がございましたら、当社スタッフにお聞かせください。

基本情報

販売戸数
-
総戸数
-
間取り / 詳細
3LDK
向き
-
建物面積(坪数)
110.13㎡(33.31坪)
土地面積(坪数)
204.84㎡(61.96坪)
建ぺい率 /
容積率
60%/200%
築年月
2025年9月(新築)
駐車場 / 月額
有 / -
土地権利
所有権
土地
(敷金 / 保証金)
- / -
建物構造
木造 / 2階建
傾斜地部分面積
-
路地状敷地
-
私道負担面積
-
セットバック
高圧線下面積
-
施工会社
(株)アーネストワン
用途地域
第一種中高層住居専用
地目 / 地勢
宅地 / 平坦
接道状況
一方(西 公道 6.0m)
国土法届出要否
不要
都市計画
市街化区域
総区画数 /
販売区画数
-/-
現況
完成済み
その他
法令上の制限
景観法
取引態様
一般媒介
引渡し
即時
取引条件の
有効期限
2026年04月22日

設備条件

設備条件
  • 現地見学会 / 女性向け / 新婚さん向け / ファミリー向け / 建物検査済み / フローリング / 公営水道 / 公共下水 / オール電化 / 電気有 / 照明器具付き / 駐車3台可 / コンロ2口以上 / 食器洗い乾燥機 / コンロ3口 / バス・トイレ別 / 追焚機能浴室 / 浴室乾燥機 / トイレ2ヶ所 / 浴室1坪以上 / 独立洗面台 / TVモニタ付インターホン / 複層ガラス
設備(その他)
    上水道・公共下水・オール電化

その他

物件番号
98614073
管理コード
-
建築確認番号
第第HPA-25-05631-1号号
情報更新日
2026年04月08日
次回更新予定日
2026年04月22日
取扱会社
  • 株式会社不動産カンパニー
  • 山形県天童市芳賀タウン北6丁目2−21 天童南駅前ビル1階 A号室
  • TEL:023-679-3476
  • 山形県知事 (1) 第002710号
  • (公社)全国宅地建物取引業保証協会会員
    (公社)山形県宅地建物取引業協会会員
    東北地区不動産公正取引協議会加盟
備考
こだわりポイント満載の天童市老野森【新築建売】リリーフB棟。徒歩6分の場所に天童市立天童中部小学校があります。駅まで徒歩13分でアクセス可能です。こちらは清潔感のある新築戸建て物件です。多種多様な不動産情報を取り扱う当社なら、きっとお客様の住まい探しに役立てることでしょう。お引っ越しをお考えの方からのお問い合わせをお待ちしております。

周辺施設

  • 天童市立天童中部小学校の画像

    小学校

    天童市立天童中部小学校

    441m(6分)

  • ヤマザワ 天童中央店の画像

    スーパー

    ヤマザワ 天童中央店

    530m(7分)

  • セブンイレブン 天童久野本4丁目店の画像

    コンビニエンスストア

    セブンイレブン 天童久野本4丁目店

    562m(8分)

  • ツルハドラッグ 天童東本町店の画像

    ドラッグストア

    ツルハドラッグ 天童東本町店

    595m(8分)

  • ファミリーマート 天童老野森店の画像

    コンビニエンスストア

    ファミリーマート 天童老野森店

    651m(9分)

  • ヨークタウン老野森の画像

    ショッピングセンター

    ヨークタウン老野森

    890m(12分)

  • フードセンターたかき 交り江店の画像

    スーパー

    フードセンターたかき 交り江店

    1259m(16分)

  • 天童市立第四中学校の画像

    中学校

    天童市立第四中学校

    1268m(16分)

  • マックスバリュ 天童店の画像

    スーパー

    マックスバリュ 天童店

    1278m(16分)

支払いシミュレーション

月々の支払額

※実際の金額と異なる場合があります。

購入希望物件価格
万円
頭金
万円
金利
%
返済額(ボーナス1回分)
万円
返済期間

※ボーナスは自動で年2回分で計算されます。

近隣の物件

  1. 天童市本町二丁目【中古住宅】

    天童市本町2丁目

    4LDK (111.79㎡)

    1,800万円

  2. 天童市柏木町建売住宅【平屋】

    天童市柏木町2丁目

    3LDK (72.04㎡)

    2,640万円

  3. 天童市柏木町【新築建売住宅】①

    天童市柏木町2丁目

    3LDK (82.80㎡)

    2,740万円

  4. 天童市柏木町二丁目【中古住宅】

    天童市柏木町2丁目

    4LDK (106.63㎡)

    1,530万円

よく見られている物件

  1. 天童市柏木町建売住宅【平屋】

    天童市柏木町2丁目

    3LDK (72.04㎡)

    2,640万円

  2. 天童市柏木町2丁目【中古住宅】

    天童市柏木町2丁目

    4LDK (101.02㎡)

    2,980万円

  3. 山形市浜崎建売住宅3号棟【Z空調】

    山形市浜崎

    3LDK (72.87㎡)

    3,190万円

  4. 東根市神町西モデルハウス

    東根市神町西1丁目

    3LDK (102.45㎡)

    2,430万円

天童市老野森【新築建売】リリーフB棟

天童市老野森【新築建売】リリーフB棟

3,480万円

-

3LDK(110.13㎡)

お気軽にお問い合わせください

無料お問い合わせ

株式会社不動産カンパニー

023-679-3476

9:00~18:00

(休:水曜日)