|天童市の一戸建て|株式会社不動産カンパニー > (戸建(売買))地域から探す > 天童市 > 天童市柏木町建売住宅【平屋】 > 物件詳細
≪平屋≫
♪フードセンターたかきまで徒歩8分!
歩いてお買い物に行けます♪
現地見学会 毎週土日祝











(※元利均等方式 金利5.00%まで ※返済年数5~50年まで入力できます)
(※ボーナスは年2回で計算しています。1000万円まで入力できます)
(※物件購入時、その他諸費用が発生する場合がございます)
| 所在地 | 山形県天童市柏木町2丁目12 | ||
|---|---|---|---|
| 交通 | |||
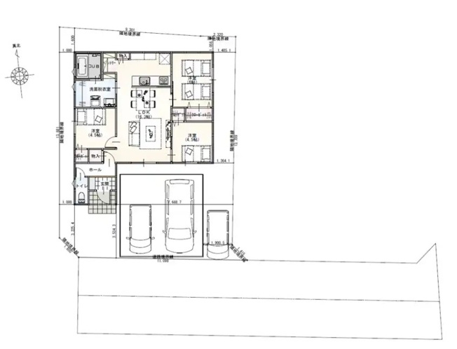
| 間取り/詳細 | 3LDK/ | 建物面積(坪数) | 72.04㎡(21.79坪) |
| 価格 | 2,720万円 | ||
| 駐車場/月額料金 | -/- | ||
| 土地の敷金/保証金 | -/- | 借地料/借地期間 | -/- |
| 土地権利 | 所有権 | 土地面積(坪数) | 230.71㎡(69.78坪) |
| 傾斜地部分面積 | - | 路地状敷地 | - |
| 私道負担面積/セットバック | -/無 | 高圧線下面積 | - |
| 地目/地勢 | 宅地/- | 接道状況 | 一方(東 公道 6.0m 間口 4.4m) |
| 建ぺい率/容積率 | 60%/176% | 用途地域 | 第一種中高層住居専用 |
| 都市計画 | 市街化区域 | 種別/構造 | 新築一戸建/木造 |
| 階建 | 1階建 | 築年月(築年数) | 2025年 8月 (新築) |
| 総区画数/販売区画数 | 1区画/1区画 | 向き | 南 |
| 現況 | 完成済み | その他の法令上の制限 | 景観法 |
| 取引態様/引渡時期 | 仲介/即時 | 建築確認番号 | 第HPA-25-03547-1号 |
| 物件番号 | 97417182 | 取引条件の有効期限 | 2025年11月24日 |
| 設備条件 |
|
||
| 備考 | 天童市立天童中部小学校が徒歩14分のところにあり、お子様の通学も便利です。こちらの物件は南向きです。住みやすい空間の条件の1つに前面道路が6m以上あるところを入れてみては。これから先、どんなお住まいで生活をしたいですか。あなたの希望にかなうお住まい探しを、ぜひ当社にお任せください。当社では様々な不動産をご用意しております。 | ||
| 設備(その他) | 上水道・公共下水・プロパンガス・東北電力 | ||
| 取扱会社 |
|
||
| QRコード |
このQRコードを読み取ることで、スマホでも物件情報を確認できます。 |
||
※地図上に表示される物件の位置は付近住所に所在することを表すものであり、実際の物件所在地とは異なる場合がございます。
天童市柏木町建売住宅【平屋】に関するこだわり条件から探す