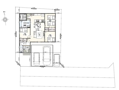
天童市柏木町建売住宅【平屋】
綺麗で清潔感のある室内が新築戸建ての特徴です。木の温もりも感じることのできる、令和7年8月築の物件となります。好評の新築物件なので、おすすめです。こちらの土地は前面道路6m以上です。当社がご紹介している物件なら、きっと満足していただけるでしょう。お客様のご要望やニーズに合わせた物件のご案内を致しますので、ぜひご用命ください。
物件情報
周辺施設
天童市柏木町建売住宅【平屋】 の物件概要
【新築一戸建】| 所在地 | 山形県天童市柏木町2丁目12 | ||
|---|---|---|---|
| 交通 | |||
| 価格 | 2,720万円 | 築年月(築年数) | 2025年 8月 ( 新築 ) |
| 建物面積/坪数 | 72.04㎡/21.79坪 | 土地面積/坪数 | 230.71㎡/69.78坪 |
| 種別/構造 | 新築一戸建 / 木造 | 地目 | 宅地 |
| 備考 | 「天童市柏木町建売住宅【平屋】」のここがイチオシ。徒歩14分の場所に天童市立天童中部小学校があります。前面道路6m以上という駐車もラクラクな物件となっております。2025年8月完成の新築物件。充実した住環境をお求めなら、天童市の不動産を購入してはいかがでしょうか。当社では多種多様な不動産情報を取り扱っておりますので、まずはご連絡ください。 | ||
| 取扱会社 |
|
||
※地図上に表示される物件の位置は付近住所に所在することを表すものであり、実際の物件所在地とは異なる場合がございます。
天童市柏木町建売住宅【平屋】の販売物件情報





